


Deux penthouses au 5e étage, bordés par 2 terrasses, que les propriétaires ont souhaité agrandir sur les terrasses arrière pour profiter de la vue sur l'enfilade de jardins, l'un pour agrandir son espace de réception et l'autre pour se faire une grande cuisine sous verrière.
La façade sera traitée tout en zinc pour retrouver l’esprit parisien tout en lui apportant une modernité. Elle sera renforcée par les menuiseries extérieures réalisées en FINELIME, menuiseries fines, en double vitrage 4/20/4. Enfin, les garde-corps, par leur légèreté, souligneront la façade qui se terminera par la verrière. Réalisée en métal, elle sera réalisée avec des verres double vitrage 4/20/4 et comprendra une paroi centrale coulissante. Le garde corps sera en verre pour profiter de la vue.
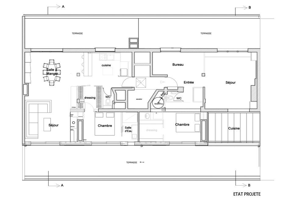
Pour l’appartement de gauche dont nous assurons aussi la conception,
L’extension permettra de mettre la chambre côté ouest sur les jardins avec la salle d’eau attenante délimitée par des pavés de verre pour agrandir l’espace et d’agrandir le séjour avec un coin salon axé sur un insert au bois créé. L’espace gagné autorisera une vraie salle à manger. Enfin, l’autre partie sera consacrée à une cuisine ouverte et bien achalandée avec la réutilisation du bar existant. Un vrai espace de réception reconquis qui ouvre les perspectives de toute part.
Le Permis de Construire ayant été obtenu à la fin de l'année, la construction commencera au mois de Mai en même temps que les travaux de chauffage de l'immeuble.